
CATEGORY
Master Thesis Project
LOCATION
Porto
YEAR
2021-2022
COLLABORATION
Filippo Dal Lago
Following the steps of the history of SAAL's residential projects, the intention is to design a complex of housing of a social nature in Porto, capable of intervening in public space. In the São Victor area, the site of the project, some granite ruins, traces of a vanished past, still emerge.
Sulle orme della storia dei progetti residenziali del SAAL, si intende progettare un complesso di abitazioni di natura sociale a Porto, in grado di intervenire sullo spazio pubblico. Nell’ area di São Victor, sito del progetto, ancora oggi emergono alcune rovine in granito, tracce di un passato scomparso.

DEMOLITION OF SAO VICTOR AREA DURING SAAL PROCESS, A. SIZA ARQUIVE, COURTESY OF MOMA

15. Miragaia



REINTERPRETATION OF LIBERAL HOUSING TYPOLOGY

SAAL HOUSING REINTEPRETATION

COMPLEX FRONTS

FINAL MAQUETTE

FACADE DEVELOPING

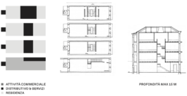
SEZIONE ORIZZONTALE +0


COMPLEX AXONOMETRY
Permanencia na continuidade
Fernando Tavora, in the essay A lição das constantes writes about a different conception than the history of Architecture, not to be understood as pure formal expression, but rather in the conception of space as a structuring element and generator of relationships. Spatial quality persists through the ages and overcomes the formal diversity of the city.
Ruin, is thus to be understood as an element supporting the design and definition of space. To persist in the continuous becoming of history must be the past that obtains relevance and new meaning in a contemporary project. To achieve this, one must layer and superimpose starting precisely from what remains, to describe a space.
Fernando Tavora, nel saggio A lição das constantes scrive di una concezione differente rispetto la storia dell’Architettura, non da intendersi come pura espressione formale, quanto piuttosto nella concezione dello spazio come elemento strutturante e generatore di relazioni. La qualità spaziale permane nelle epoche e supera la diversità formale della città.
La rovina, è da intendersi dunque come elemento a supporto del progetto e della definizione dello spazio. A permanere nella continuo divenire della storia deve essere il passato che ottiene rilevanze e nuovo significato in un progetto contemporaneo. Per ottenere ciò, bisogna stratificare e sovrapporre partendo proprio da ciò che rimane, per descrivere uno spazio.

SECTIONS

The real centerpiece of the project is the new public square, which distributes various public functions at the same elevation and serves as the main junction of pathways and a true place of sociality. From it, the auditorium, cafeteria, worship hall and common room of the residential complex can be accessed.

AUDITORIUM
Syntesys
The SAAL process despite its short duration had a strong socio-cultural impact. The proposed settlement principles and the rethinking of the architectural building process as a tool for social emancipation are its real legacy.
The SAAL model, extracted from the analysis of Porto's housing projects, is actually still applicable today in the city's complex urban organism.
The new accessible housing complex in São Victor, further expands the research by proposing a structure rich in civic functions interconnected to housing through a careful design of open space as a place of aggregation and sociality. To add to this, history is conceived as an operational tool in the construction of the present, The ruins become active project matter in a process in which the contemporary is layered over the existing to give new life to a forgotten place.


CATEGORY
Master Thesis Project
LOCATION
Porto
YEAR
2021-2022
COLLABORATION
Filippo Dal Lago

DEMOLITION OF SAO VICTOR AREA DURING SAAL PROCESS, A. SIZA ARQUIVE, COURTESY OF MOMA
Following the steps of the history of SAAL's residential projects, the intention is to design a complex of housing of a social nature in Porto, capable of intervening in public space. In the São Victor area, the site of the project, some granite ruins, traces of a vanished past, still emerge.
Sulle orme della storia dei progetti residenziali del SAAL, si intende progettare un complesso di abitazioni di natura sociale a Porto, in grado di intervenire sullo spazio pubblico. Nell’ area di São Victor, sito del progetto, ancora oggi emergono alcune rovine in granito, tracce di un passato scomparso.

15. Miragaia



REINTERPRETATION OF LIBERAL HOUSING TYPOLOGY

SAAL HOUSING REINTEPRETATION

COMPLEX FRONTS

FINAL MAQUETTE

FACADE DEVELOPING

SEZIONE ORIZZONTALE +0


COMPLEX AXONOMETRY
Permanencia na continuidade
Fernando Tavora, in the essay A lição das constantes writes about a different conception than the history of Architecture, not to be understood as pure formal expression, but rather in the conception of space as a structuring element and generator of relationships. Spatial quality persists through the ages and overcomes the formal diversity of the city.
Ruin, is thus to be understood as an element supporting the design and definition of space. To persist in the continuous becoming of history must be the past that obtains relevance and new meaning in a contemporary project. To achieve this, one must layer and superimpose starting precisely from what remains, to describe a space.
Fernando Tavora, nel saggio A lição das constantes scrive di una concezione differente rispetto la storia dell’Architettura, non da intendersi come pura espressione formale, quanto piuttosto nella concezione dello spazio come elemento strutturante e generatore di relazioni. La qualità spaziale permane nelle epoche e supera la diversità formale della città.
La rovina, è da intendersi dunque come elemento a supporto del progetto e della definizione dello spazio. A permanere nella continuo divenire della storia deve essere il passato che ottiene rilevanze e nuovo significato in un progetto contemporaneo. Per ottenere ciò, bisogna stratificare e sovrapporre partendo proprio da ciò che rimane, per descrivere uno spazio.

SECTIONS

The real centerpiece of the project is the new public square, which distributes various public functions at the same elevation and serves as the main junction of pathways and a true place of sociality. From it, the auditorium, cafeteria, worship hall and common room of the residential complex can be accessed.

AUDITORIUM
Syntesys
The SAAL process despite its short duration had a strong socio-cultural impact. The proposed settlement principles and the rethinking of the architectural building process as a tool for social emancipation are its real legacy.
The SAAL model, extracted from the analysis of Porto's housing projects, is actually still applicable today in the city's complex urban organism.
The new accessible housing complex in São Victor, further expands the research by proposing a structure rich in civic functions interconnected to housing through a careful design of open space as a place of aggregation and sociality. To add to this, history is conceived as an operational tool in the construction of the present, The ruins become active project matter in a process in which the contemporary is layered over the existing to give new life to a forgotten place.
Marco Dal Lago
● Available for new projects
2023 © MARCO DAL LAGO ALL RIGHTS RESERVED. - P.IVA 04464570243
● Available for new projects
2023 © MARCO DAL LAGO ALL RIGHTS RESERVED. - P.IVA 04464570243






